Information om lokalen på Turingevägen 53
Bakgrund
Lokalen blev ledig den 30-e september då vår senaste hyresgäst avflyttade efter att ha hyrt under många år. Att hitta en ny seriös hyresgäst är problematiskt just nu då många lokaler i Högdalen och området runt Älvsjömässan är outhyrda.
Nuläge
Styrelsen planerar för kommande renovering/byte av kablar och ledningar för el i fastigheterna. Dvs i samtliga utrymmen utom lägenheterna. Kostnad för detta uppskattar vi till ca 2,5-3 mkr. (lägenheterna är medlemmarnas ansvar)
Ambitionen är att genomföra detta på ett sådant sätt att vi inte drar på oss kostnader som kan medföra att månadsavgiften höjs. Därför vill vi inte finansiera renoveringen med att ta upp nya banklån om det kan undvikas.
Styrelsen vill försöka få fram kapital genom att omvandla hyreslokaler/kontor till bostäder som säljs, där möjlighet finns.
Lokalen på Turingevägen är en sådan möjlighet.
Vad är gjort/vad skall göras
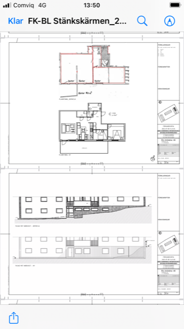
- Ritningar är upprättade och ansökan om bygglov inskickad.
- Notar Fastighetsmäklare AB har gjort en preliminär värdering av bostaden i färdigt skick. (ca 2,9 mkr)
- Öppet hus för medlemmarna har genomförts där projektet presenterats på plats.
- Lokalen har visats för två byggföretag som kommer att lämna anbud på arbetet.
- En kravspecifikation är framtagen med hjälp av vår konsult från Fastighetsägarna. Där ingår extra ljudisolering av taket.
- Extrastämma skall hållas efter beviljat bygglov och anbud inkommit från byggare. (troligen före årsskiftet)
- Byggtiden är ca 3 månader (vardagar mellan kl 07.00-17.00).
- Lägenheten säljs av mäklare (Notar) innan sommaren.
Medlem som arbetar hemifrån och blir störd under byggtiden kan få låna föreningens lokal på Turingevägen 45.
Frågor mailar ni till: info@stankskarmen.se
Örby 2022-10-25
Styrelsen
